Summer design studio

The Summer Design Studio at SHM was developed for summer interns as an immersive design environment. Within the program, interns operate as emerging architects, developing a prescribed program through iterative schematic exploration.

Emphasis is placed on early-stage design thinking, site strategy, the relationship between plan and massing, and the translation of conceptual sketches into increasingly resolved architectural propositions.

The Summer Design Studio at SHM Architects is ongoing.

CRESTED BUTTE RESIDENCE

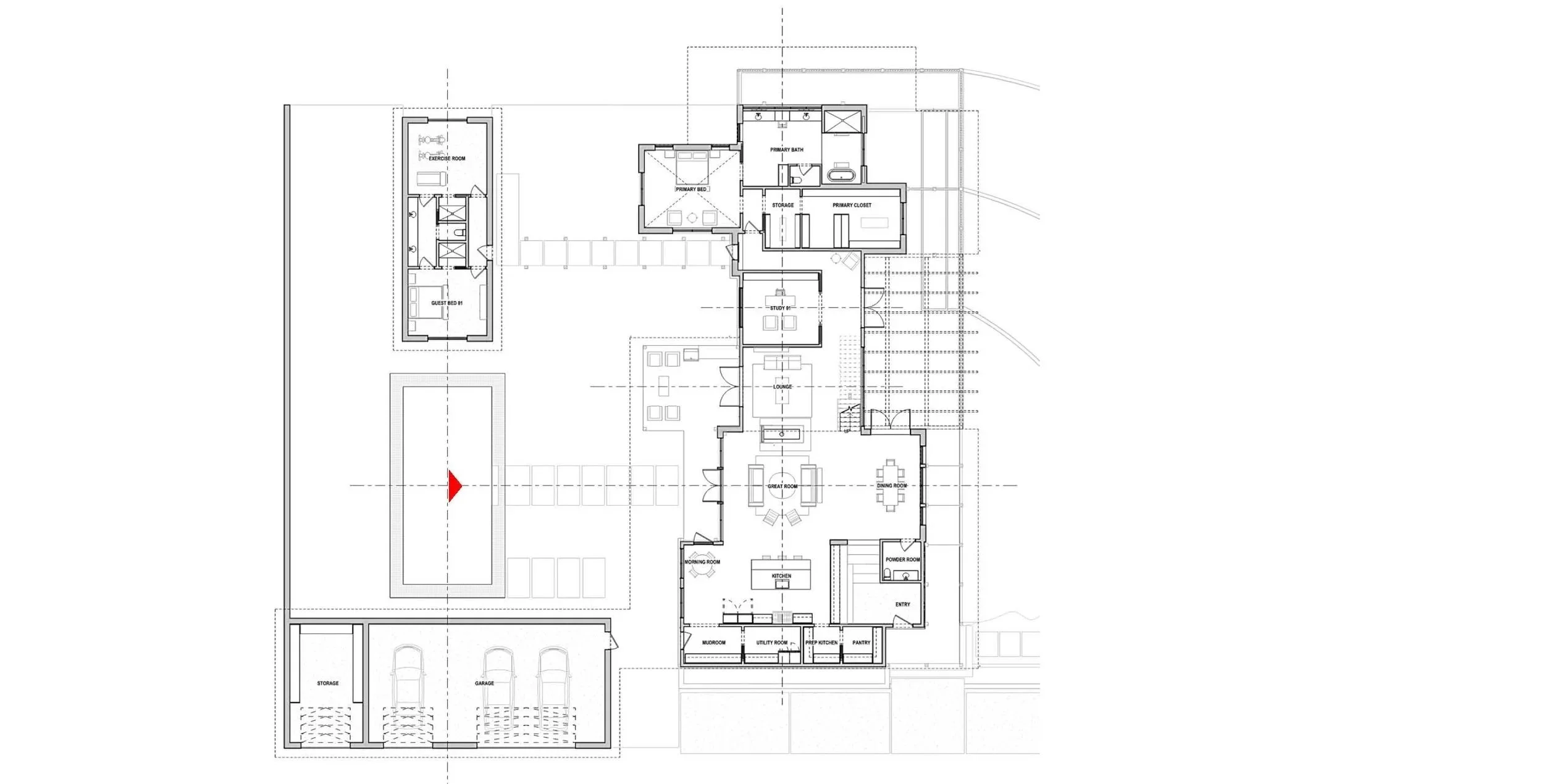
The Credted Butte Residence explores site-responsive strategy and sustainable building practices. Carefully positioned to minimize disturbance to the existing topography while framing expansive views of the surrounding landscape, the project emphasizes restraint, clarity, and material simplicity.

The project integrates rainwater harvesting and passive ventilation strategies, pairing environmental performance with spatial intent. Material selection is approached not only as an aesthetic exercise, but as a consideration of embodied carbon and long-term impact.

In collaboration with Mary Liu

dALLAS, TEXAS RESIDENCE

This project is made up of three “pavilions” connected by long, spanning hallways designed to celebrate both light and rainfall.

The celebration of light is accomplished through light monitors located in the two hallways connecting the central public pavilion to the adjacent primary and guest pavilions. Rainfall is celebrated by intentional flooding through a man-made creek, linking the three pavilions as water flows across the site and drains into Turtle Creek.

The goal of this project was to create a harmonious living space that embraces the beauty of the natural environment, including the site’s topography, while maintaining the clean, minimalist lines characteristic of Texas Modernist architecture.

In collaboration with Jylian Hanson

Dallas, tx RESIDENCE

With an emphasis on simplicity and the participation of outdoor space in the way the house is lived in, Japanese architecture and the organization of spaces were the research focus. Creating a flow of spaces with limited walls, intentional procession between spaces was made through alignment and proportionality.

Nature and the outdoors remained a common, engaging element, as a series of courtyards–a small private courtyard off the master bath, a central courtyard accessible from kitchen/dining, and the backyard as the overarching courtyard linking all spaces–and water features framed the interior spaces.

In collaboration with Aysha Jeddy

COURTYARD RESIDENCE

This courtyard house is in response to a prominent site in Dallas, TX The client’s goals lead to an open, private courtyard to act as a backdrop for daily life.

Enhancing the landscape while maintaining the Blackland Prairie’s natural state was a priority. Buildings are separated by function, allowing breezes and rainfall to pass openly through the site.

In collaboration with Suprgeon Sanders