UT Arlington

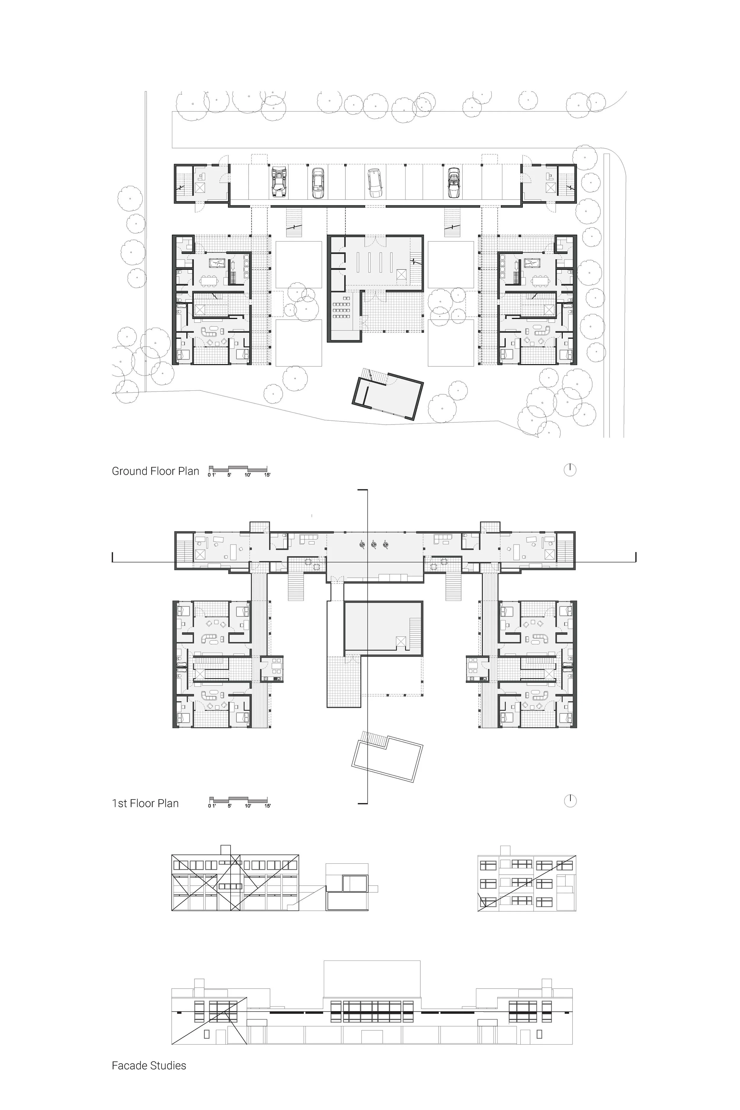
Course 4556 examined missing middle housing typologies within Dallas as a framework for delivering socially and environmentally responsive housing.

Students were assigned distinct sites with targeted density and acreage parameters, prompting a range of development strategies. Through analysis of missing middle precedents and the evolving socio-spatial context of Dallas, each proposal developed a highly specific response to contemporary housing challenges, balancing scale, livability, and urban integration.

Precedent study + Site analysis

Medium multiplex with live + work program for students.

Cottage court proposal for neurodivergence + Site analysis